Строительство домов, бань, производство пиломатериалов

Коттедж ФАБ-126

Рейтинг:
Стоимость:
Цена: 247 000.00 руб.

Красивый и большой проект дома, полностью соответствующий европейской концепциии загородной архитектуры. Для этого проекта существует множество вариантов внешней и внутренней отделки и комбинаций использования материалов при возведении дома. Например, первый этаж дома можно возвести из блоков, а фасад отделать под камень. А дерево использовать при строительстве второго этажа и крыши.

Для такого проекта желательно использовать ленточный или монолитный фундамент (если нужен подвал). Свайный же фундамент также оптимален для проекта массивного коттеджа, как и для более простых домов из бруса, кругляка или домов-каркасников.

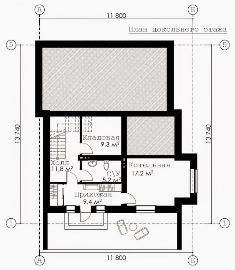
Дом три этажа – 1 этаж, цокольный и мансарда (фотографии и планировка) 12х14.
 

Список комнат и метраж:

 

1 этаж из камня2 этаж из бруса (мансардный)Цокольный этаж

Холл — 12,4 м2

Гостиная — 28,5 м2

Раздевалка — 4,3 м2

Кухня — 29,2 м2

Спальня — 26,5 м2

Гардеробная — 8,1 м2

Ванная комната — 10,6 м2

Веранда — 25,6 м2

Спальня 1 — 26,2 м2

Спальня 2 — 19,1 м2

Спальня 3 — 17,7 м2

Ванная комната — 10,8 м2

Санузел — 2,7 м2

Холл — 13,1 м2

Гардеробная — 5,3 м2

Балкон — 3,1 м2

Кладовая — 9,3 м2

Холл 1 — 11,8 м2

Холл 2 — 13,3 м2

Санузел — 5,2 м2

Котельная — 17,2 м2

Прихожая — 9,4 м2

 

Отзывы

Оставить отзыв
 

+375 (29)156-81-01

Строительство домов


+375 (29)156-81-01

Заказ пиломатериалов

 

Режим работы:

Пн-Пт: 09:00-17:00
Сб: 09:00-15:00
Вс: выходной

Данный сайт является интернет-витриной. Размещенная информация носит справочный характер и не является публичной офертой. Опубликованные товары служат образцами изделий, которые наше предприятие может изготовить.