Строительство домов, бань, производство пиломатериалов

Загородный дом с пристройкой КА-121

Рейтинг:
Стоимость:
Цена: 47 200.00 руб.

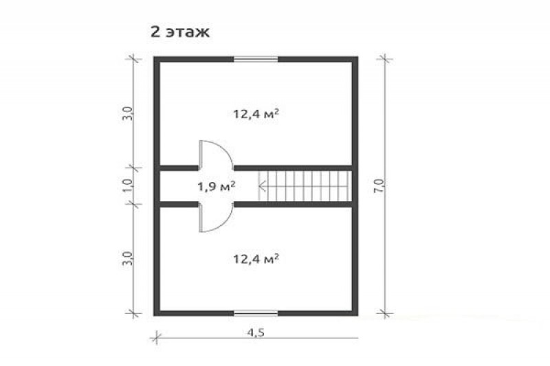
Один из самых популярных проектов. Простота исполнения, лаконичность архитектуры, легкость конструкции и стропильной системы. Огромное количество вариаций по планировке и монтажу. Дом можно использовать как для круглогодичного проживания, выбрав более толстый брус и утепление, так и для сезонного (летнего) сезона.

 

Отзывы

Оставить отзыв
 

+375 (29)156-81-01

Строительство домов


+375 (29)156-81-01

Заказ пиломатериалов

 

Режим работы:

Пн-Пт: 09:00-17:00
Сб: 09:00-15:00
Вс: выходной

Данный сайт является интернет-витриной. Размещенная информация носит справочный характер и не является публичной офертой. Опубликованные товары служат образцами изделий, которые наше предприятие может изготовить.